Leave a Message

Thank you for your message. We will be in touch with you shortly.

Explore Our Properties

Property Description

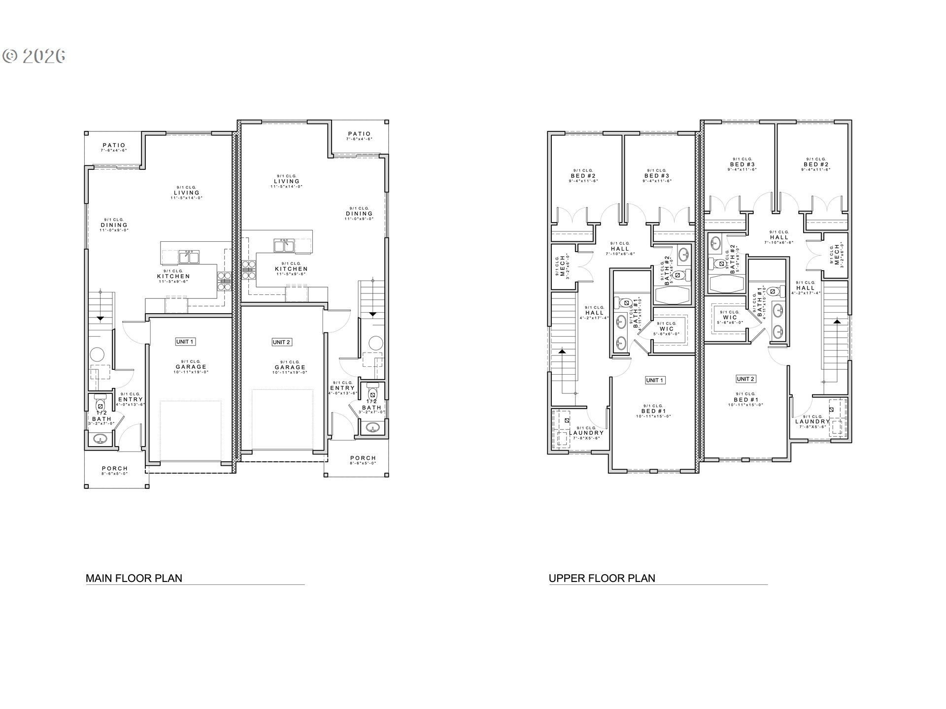
Built by a multi-year Street of Dreams builder and Builder of the Year award winner by the Home Building Association, Robbins Place is a newly constructed 29-unit multifamily community offering scale, efficiency, and long-term durability in a growing Milwaukie submarket. The development consists of twenty-nine three-bedroom, two and a half bathroom homes totaling approximately 43,077 square feet of living space, delivering 87 bedrooms, 58 full bathrooms, and 29 half bathrooms across the community. Each unit features an efficiently designed two-story layout with open-concept main level living, covered front porch, private patio, and fenced yard. One-car attached garages with additional driveway parking enhance tenant appeal and functionality. All bedrooms are located upstairs along with a full laundry room, while a main-level half bathroom adds convenience. Unit sizes are approximately 1,485 square feet, with one unit at 1,497 square feet, supporting strong rental positioning within the three-bedroom segment of the market. Constructed with durability and long-term performance in mind, the community includes high-efficiency gas forced-air heating, modern insulation standards, and quality finishes throughout. Double-framed common walls with a one-inch air gap and insulation between units enhance separation and privacy. Located in Clackamas County, the property benefits from tax positioning outside Portland city limits while maintaining close proximity to Milwaukie Bay Park and the Willamette River waterfront (~1.5 mi), downtown Milwaukie shops and dining (~1.5 mi), New Seasons Market (~1.6 mi), the Milwaukie/Main Street MAX Station (~1.7 mi), and convenient access to SE McLoughlin Blvd. The combination of location, unit mix, scale, and new construction quality presents a compelling opportunity for investors seeking stabilized cash flow, portfolio expansion, or long-term hold potential in a high-demand rental corridor.

Overview

Property Status
For Sale
Lot Size
2.82 Acres
MLS ID
336091629
Property Type
Multi-Family
Year Built
2026

Features & Amenities

Total Area
43,077 Sq.Ft.
View Description
Trees Woods
Stories
2
Water Source
Public Water
Roof
Composition
Lot Features
Level
Parking
Driveway, Garage
Heat Type
Forced Air 90
Air Conditioning
None
Sewer
Public Sewer
Substructure
Concrete Perimeter, Stem Wall
Security Features
Sidewalk
Elementary School
View Acres
Middle School
Alder Creek
High School
Putnam
Sales Price
$13,774,900
Zoning
R10

Downloads

5141 SE Aldona CT

Schedule a Tour

We would love to help you see this beautiful home! As a full-service brokerage, we can help you tour. Please submit an offer, and answer questions about the buying process.

Thank you

for your interest in 5141 SE Aldona CT, Milwaukie, OR 97267

5141 SE Aldona CT
Navigate

Mortgage Calculator

Estimate your monthly mortgage payment, including the principal and interest, property taxes, and HOA. Adjust the values to generate a more accurate rate.
$0,000 Your Payment 20 15 65
$0,000 Your Payment

A Collection of Portland's Best

Browse Featured Properties

  • 2425 NE Alberta ST, Portland For Sale

    $30,875,000

    2425 NE Alberta ST, Portland

    2425 NE Alberta ST, Portland, OR 97211

    • 7 Beds
    • 7 Baths
    • 67,286 Sq.Ft.
  • 5141 SE Aldona CT For Sale

    $13,774,900

    5141 SE Aldona CT

    5141 SE Aldona CT, Milwaukie, OR 97267

    • 6 Beds
    • 6 Baths
    • 43,077 Sq.Ft.
  • 2465 NE ALBERTA ST, Portland For Sale

    $9,599,900

    2465 NE ALBERTA ST, Portland

    2465 NE ALBERTA ST, Portland, OR 97211

    • 7 Beds
    • 10 Baths
    • 22,241 Sq.Ft.
  • 2833 NE 62nd AVE For Sale

    $7,380,900

    2833 NE 62nd AVE

    2833 NE 62nd AVE, Portland, OR 97213

    • 14 Beds
    • 15 Baths
    • 22,556 Sq.Ft.
  • NE Ainsworth ST For Sale

    $6,999,000

    NE Ainsworth ST

    NE Ainsworth ST, Portland, OR 97211

    • 20 Beds
    • 30 Baths
    • 15,956 Sq.Ft.
  • 7562 N Emerald AVE Sold

    $6,150,000

    7562 N Emerald AVE

    7562 N Emerald AVE, Portland, OR 97217

    • 12 Beds
    • 12 Baths
    • 18,296 Sq.Ft.
  • 2170 Walker RD NE Pending

    $6,000,000

    2170 Walker RD NE

    2170 Walker RD NE, Salem, OR 97305

  • 3246 SE 115th AVE, Portland For Sale

    $5,958,900

    3246 SE 115th AVE, Portland

    3246 SE 115th AVE, Portland, OR 97266

    • 5 Beds
    • 6 Baths
    • 14,363 Sq.Ft.
  • 7606 NE M L KING JR BLVD, Portland For Sale

    $5,800,000

    7606 NE M L KING JR BLVD, Portland

    7606 NE M L KING JR BLVD, Portland, OR 97211

    • 32,000 Sq.Ft.
  • 5855 NE Prescott ST For Sale

    $5,424,900

    5855 NE Prescott ST

    5855 NE Prescott ST, Portland, OR 97218

    • 20 Beds
    • 26 Baths
    • 13,521 Sq.Ft.
  • 4328 NE Going ST, Portland For Sale

    $5,173,900

    4328 NE Going ST, Portland

    4328 NE Going ST, Portland, OR 97218

    • 7 Beds
    • 9 Baths
    • 12,080 Sq.Ft.
  • 4738 SE BELMONT ST, Portland For Sale

    $4,799,900

    4738 SE BELMONT ST, Portland

    4738 SE BELMONT ST, Portland, OR 97215

    • 1 Bed
    • 2 Baths
    • 9,690 Sq.Ft.
  • 8632 SW 21st AVE For Sale

    $4,418,900

    8632 SW 21st AVE

    8632 SW 21st AVE, Portland, OR 97219

    • 8 Beds
    • 12 Baths
    • 9,970 Sq.Ft.
  • 1515 N SIMPSON ST Sold

    $4,250,000

    1515 N SIMPSON ST

    1515 N SIMPSON ST, Portland, OR 97217

    • 2 Beds
    • 4 Baths
    • 11,491 Sq.Ft.
  • 16550 SE MCLOUGHLIN BLVD Sold

    $4,250,000

    16550 SE MCLOUGHLIN BLVD

    16550 SE MCLOUGHLIN BLVD, Milwaukie, OR 97267

    • 31,564 Sq.Ft.
  • 8328 N Bank ST For Sale

    $4,143,900

    8328 N Bank ST

    8328 N Bank ST, Portland, OR 97203

    • 10 Beds
    • 15 Baths
    • 9,597 Sq.Ft.
  • 1609 E HARBOR DR For Sale

    $4,095,000

    1609 E HARBOR DR

    1609 E HARBOR DR, Warrenton, OR 97146

    • 20,000 Sq.Ft.
  • 2164 GOODALL CT Sold

    $4,000,000

    2164 GOODALL CT

    2164 GOODALL CT, Lake Oswego, OR 97034

    • 4 Beds
    • 7 Baths
    • 6,899 Sq.Ft.
  • 232 NE 61ST AVE, Portland For Sale

    $3,999,900

    232 NE 61ST AVE, Portland

    232 NE 61ST AVE, Portland, OR 97213

    • 11 Beds
    • 8 Baths
    • 12,240 Sq.Ft.
  • 5139 SE Aldona CT For Sale

    $3,799,900

    5139 SE Aldona CT

    5139 SE Aldona CT, Milwaukie, OR 97267

    • 24 Beds
    • 24 Baths
    • 11,892 Sq.Ft.
  • 3727 S Hood AVE, Portland For Sale

    $3,749,900

    3727 S Hood AVE, Portland

    3727 S Hood AVE, Portland, OR 97239

    • 6 Beds
    • 10 Baths
    • 9,695 Sq.Ft.
  • 3755 S HOOD AVE Sold

    $3,740,000

    3755 S HOOD AVE

    3755 S HOOD AVE, Portland, OR 97035

    • 6 Beds
    • 10 Baths
    • 9,695 Sq.Ft.
  • 678 SE HOGAN RD Sold

    $3,450,000

    678 SE HOGAN RD

    678 SE HOGAN RD, Gresham, OR 97080

    • 12 Beds
    • 9 Baths
    • 22,775 Sq.Ft.
  • 1885 S GREENWOOD RD Sold

    $3,443,000

    1885 S GREENWOOD RD

    1885 S GREENWOOD RD, Portland, OR 97219

    • 5 Beds
    • 6 Baths
    • 5,732 Sq.Ft.
  • 1535 N Alberta ST, Portland For Sale

    $3,400,000

    1535 N Alberta ST, Portland

    1535 N Alberta ST, Portland, OR 97217

    • 5 Beds
    • 10 Baths
    • 10,606 Sq.Ft.
  • 7220 SW Montgomery Way Sold

    $3,400,000

    7220 SW Montgomery Way

    7220 South West Montgomery Way, Wilsonville, OR 97070

    • 5 Beds
    • 4 Baths
    • 4,400 Sq.Ft.
  • 11 NE 55TH AVE, Portland For Sale

    $3,349,900

    11 NE 55TH AVE, Portland

    11 NE 55TH AVE, Portland, OR 97213

    • 7 Beds
    • 8 Baths
    • 9,647 Sq.Ft.
  • 2938 NE 62nd AVE For Sale

    $3,339,900

    2938 NE 62nd AVE

    2938 NE 62nd AVE, Portland, OR 97213

    • 5 Beds
    • 6 Baths
    • 8,356 Sq.Ft.
  • 9903 YERGEN RD Sold

    $3,100,000

    9903 YERGEN RD

    9903 YERGEN RD, Aurora, OR 97002

  • 13740 NW BURTON ST Sold

    $3,035,000

    13740 NW BURTON ST

    13740 NW BURTON ST, Portland, OR 97229

    • 5 Beds
    • 5 Baths
    • 7,881 Sq.Ft.
  • 24683 SW NEWLAND RD Sold

    $3,000,000

    24683 SW NEWLAND RD

    24683 SW NEWLAND RD, Wilsonville, OR 97070

    • 5 Beds
    • 7 Baths
    • 7,256 Sq.Ft.
  • 3 Monarch, Wilsonville For Sale

    $2,950,000

    3 Monarch, Wilsonville

    4584 SW Monarch LN, Wilsonville, OR 97070

    • 5 Beds
    • 2 Baths
    • 4,735 Sq.Ft.
  • 5100 SE ALDONA CT Sold

    $2,820,000

    5100 SE ALDONA CT

    5100 SE ALDONA CT, Milwaukie, OR 97267

  • 7190 NE Glisan ST, Portland For Sale

    $2,788,888

    7190 NE Glisan ST, Portland

    7190 NE Glisan ST, Portland, OR 97213

    • 14 Beds
    • 12 Baths
    • 8,760 Sq.Ft.
  • 22300 SW AEBISCHER RD Sold

    $2,750,000

    22300 SW AEBISCHER RD

    22300 SW AEBISCHER RD, Sherwood, OR 97140

    • 4 Beds
    • 4 Baths
    • 3,832 Sq.Ft.
  • 15750 S GERBER RD Sold

    $2,670,000

    15750 S GERBER RD

    15750 S GERBER RD, Oregon City, OR 97045

    • 4 Beds
    • 5 Baths
    • 4,332 Sq.Ft.
  • 1410 SE TOWNSHIP RD Sold

    $2,617,500

    1410 SE TOWNSHIP RD

    1410 SE TOWNSHIP RD, Canby, OR 97013

    • 10,100 Sq.Ft.
  • 17210 WALL ST Sold

    $2,600,000

    17210 WALL ST

    17210 WALL ST, Lake Oswego, OR 97034

    • 6 Beds
    • 6 Baths
    • 10,883 Sq.Ft.
  • 9424 N Oswego AVE Sold

    $2,530,000

    9424 N Oswego AVE

    9424 N Oswego AVE, Portland, OR 97203

    • 18 Beds
    • 18 Baths
    • 6,590 Sq.Ft.
  • 3001 NE Ainsworth ST, Portland Sold

    $2,420,000

    3001 NE Ainsworth ST, Portland

    3001 NE Ainsworth ST, Portland, OR 97211

    • 4 Beds
    • 6 Baths
    • 6,408 Sq.Ft.
  • 0 SE Hwy 212 For Sale

    $2,399,000

    0 SE Hwy 212

    0 SE Hwy 212, Happy Valley, OR 97089

  • 1426 VILLAGE PARK PL Sold

    $2,350,655

    1426 VILLAGE PARK PL

    1426 VILLAGE PARK PL, West Linn, OR 97068

    • 24 Beds
    • 8 Baths
    • 9,084 Sq.Ft.
  • 8101 NE Glisan ST Sold

    $2,350,000

    8101 NE Glisan ST

    8101 NE Glisan ST, Portland, OR 97213

  • 8101 NE GLISAN ST Sold

    $2,350,000

    8101 NE GLISAN ST

    8101 NE GLISAN ST, Portland, OR 97213

    • 11,260 Sq.Ft.
  • 16083 Kaylyn DR For Sale

    $2,349,900

    16083 Kaylyn DR

    16083 Kaylyn DR, Oregon City, OR 97045

    • 5 Beds
    • 6 Baths
    • 4,216 Sq.Ft.
  • 1873 SE Tacoma ST, Portland For Sale

    $2,349,900

    1873 SE Tacoma ST, Portland

    1873 SE Tacoma ST, Portland, OR 97202

    • 8 Beds
    • 12 Baths
    • 5,476 Sq.Ft.
  • 20 SW 111TH TER For Sale

    $2,250,000

    20 SW 111TH TER

    20 SW 111TH TER, Portland, OR 97229

    • 4 Beds
    • 4 Baths
    • 3,425 Sq.Ft.
  • 305 SE Jetty AVE, Lincoln City For Sale

    $2,239,900

    305 SE Jetty AVE, Lincoln City

    305 SE Jetty AVE, Lincoln City, OR 97367

    • 8 Beds
    • 12 Baths
    • 6,713 Sq.Ft.
  • 4974 PARK BLUFF PL, Lake Oswego For Sale

    $2,200,000

    4974 PARK BLUFF PL, Lake Oswego

    4974 PARK BLUFF PL, Lake Oswego, OR 97035

    • 4 Beds
    • 4 Baths
    • 4,119 Sq.Ft.
  • 4992 PARK BLUFF PL, Lake Oswego For Sale

    $2,200,000

    4992 PARK BLUFF PL, Lake Oswego

    4992 PARK BLUFF PL, Lake Oswego, OR 97035

    • 4 Beds
    • 5 Baths
    • 4,023 Sq.Ft.
View All Properties

Follow Us On Instagram