Leave a Message

Thank you for your message. We will be in touch with you shortly.

Explore Our Properties

Property Description

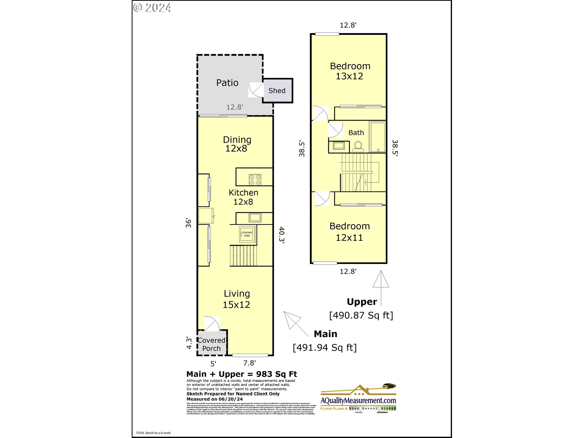
Two-bedroom townhome-style condo set in a small 24-unit condo community with easy access to shopping, restaurants, and freeways. A separate living room with tall ceiling, open staircase, and tree view from the large picture window. The kitchen, with slab granite countertops, stone tile backsplash, newer stainless refrigerator, dishwasher, and cooktop, opens to the dining room and a private patio, great for both indoor and outdoor entertaining, morning coffee, BBQs with friends and family or space for gardening. Extra outdoor storage with a convenient gate to community grounds. Wood laminate flooring throughout the lower level for easy care and fabulous for pet owners. Freshly cleaned upper-level wall-to-wall carpet. Two spacious 2nd level bedrooms at separate ends of the hallway for privacy. Assigned covered parking with additional guest spaces available.

Overview

Property Status
Sold
MLS ID
24596347
Property Type
Condo
Year Built
1973

Features & Amenities

Total Area
983 Sq.Ft.
Architecture Styles
Stories 2, Townhouse
Stories
2
Water Source
Public Water
Roof
Composition
Lot Features
Commons, Level, Private
Parking
Carport
Heat Type
Wall Heater
Other Interior Features
Laminate Flooring, Laundry, Wallto Wall Carpet, Washer Dryer
Sewer
Public Sewer
HOA Amenities
Commons, Exterior Maintenance, Maintenance Grounds, Management, Sewer, Trash, Water
Other Exterior Features
Fenced, Patio
Elementary School
Salish Ponds
Middle School
Reynolds
High School
Reynolds
Sales Price
$214,900
Real Estate Tax
$1,871/yr
HOA
$295/mo

Downloads

2208 NE 201ST AVE 5

Schedule a Tour

We would love to help you see this beautiful home! As a full-service brokerage, we can help you tour. Please submit an offer, and answer questions about the buying process.

Enter a valid email

Thank you

for your interest in 2208 NE 201ST AVE 5, Fairview, OR 97024

back to page
2208 NE 201ST AVE 5
Navigate

A Collection of Portland's Best

Browse Featured Properties

  • 2425 NE Alberta ST, Portland For Sale

    $30,875,000

    2425 NE Alberta ST, Portland

    2425 NE Alberta ST, Portland, OR 97211

    • 7 Beds
    • 7 Baths
    • 67,286 Sq.Ft.
  • 2465 NE ALBERTA ST, Portland For Sale

    $9,799,900

    2465 NE ALBERTA ST, Portland

    2465 NE ALBERTA ST, Portland, OR 97211

    • 7 Beds
    • 10 Baths
    • 22,241 Sq.Ft.
  • NE Ainsworth ST For Sale

    $6,999,000

    NE Ainsworth ST

    NE Ainsworth ST, Portland, OR 97211

    • 20 Beds
    • 30 Baths
    • 15,956 Sq.Ft.
  • 7562 N Emerald AVE Sold

    $6,150,000

    7562 N Emerald AVE

    7562 N Emerald AVE, Portland, OR 97217

    • 12 Beds
    • 12 Baths
    • 18,296 Sq.Ft.
  • 2170 Walker RD NE Pending

    $6,000,000

    2170 Walker RD NE

    2170 Walker RD NE, Salem, OR 97305

  • 3246 SE 115th AVE, Portland For Sale

    $5,983,900

    3246 SE 115th AVE, Portland

    3246 SE 115th AVE, Portland, OR 97266

    • 5 Beds
    • 6 Baths
    • 14,395 Sq.Ft.
  • 7606 NE M L KING JR BLVD, Portland For Sale

    $5,800,000

    7606 NE M L KING JR BLVD, Portland

    7606 NE M L KING JR BLVD, Portland, OR 97211

    • 32,000 Sq.Ft.
  • 5855 NE Prescott ST For Sale

    $5,424,900

    5855 NE Prescott ST

    5855 NE Prescott ST, Portland, OR 97218

    • 20 Beds
    • 26 Baths
    • 13,521 Sq.Ft.
  • 4328 NE Going ST, Portland For Sale

    $5,288,900

    4328 NE Going ST, Portland

    4328 NE Going ST, Portland, OR 97218

    • 5 Beds
    • 6 Baths
    • 12,730 Sq.Ft.
  • 4738 SE BELMONT ST, Portland For Sale

    $4,999,800

    4738 SE BELMONT ST, Portland

    4738 SE BELMONT ST, Portland, OR 97215

    • 1 Bed
    • 2 Baths
    • 9,690 Sq.Ft.
  • 1515 N SIMPSON ST Sold

    $4,250,000

    1515 N SIMPSON ST

    1515 N SIMPSON ST, Portland, OR 97217

    • 2 Beds
    • 4 Baths
    • 11,491 Sq.Ft.
  • 16550 SE MCLOUGHLIN BLVD Sold

    $4,250,000

    16550 SE MCLOUGHLIN BLVD

    16550 SE MCLOUGHLIN BLVD, Milwaukie, OR 97267

    • 31,564 Sq.Ft.
  • 2164 GOODALL CT Sold

    $4,000,000

    2164 GOODALL CT

    2164 GOODALL CT, Lake Oswego, OR 97034

    • 4 Beds
    • 7 Baths
    • 6,899 Sq.Ft.
  • 232 NE 61ST AVE, Portland For Sale

    $3,999,900

    232 NE 61ST AVE, Portland

    232 NE 61ST AVE, Portland, OR 97213

    • 11 Beds
    • 8 Baths
    • 12,240 Sq.Ft.
  • 3727 S Hood AVE, Portland For Sale

    $3,849,900

    3727 S Hood AVE, Portland

    3727 S Hood AVE, Portland, OR 97239

    • 6 Beds
    • 10 Baths
    • 9,695 Sq.Ft.
  • 3755 S HOOD AVE Sold

    $3,740,000

    3755 S HOOD AVE

    3755 S HOOD AVE, Portland, OR 97035

    • 6 Beds
    • 10 Baths
    • 9,695 Sq.Ft.
  • 5170 SE 28th AVE, Portland For Sale

    $3,599,900

    5170 SE 28th AVE, Portland

    5170 SE 28th AVE, Portland, OR 97202

    • 10 Beds
    • 15 Baths
    • 8,706 Sq.Ft.
  • 678 SE HOGAN RD Sold

    $3,450,000

    678 SE HOGAN RD

    678 SE HOGAN RD, Gresham, OR 97080

    • 12 Beds
    • 9 Baths
    • 22,775 Sq.Ft.
  • 1885 S GREENWOOD RD Sold

    $3,443,000

    1885 S GREENWOOD RD

    1885 S GREENWOOD RD, Portland, OR 97219

    • 5 Beds
    • 6 Baths
    • 5,732 Sq.Ft.
  • 0 SE Hwy 212 For Sale

    $3,406,500

    0 SE Hwy 212

    0 SE Hwy 212, Happy Valley, OR 97089

  • 1535 N Alberta ST, Portland For Sale

    $3,400,000

    1535 N Alberta ST, Portland

    1535 N Alberta ST, Portland, OR 97217

    • 5 Beds
    • 10 Baths
    • 10,606 Sq.Ft.
  • 7220 SW Montgomery Way Sold

    $3,400,000

    7220 SW Montgomery Way

    7220 South West Montgomery Way, Wilsonville, OR 97070

    • 5 Beds
    • 4 Baths
    • 4,400 Sq.Ft.
  • 11 NE 55TH AVE, Portland For Sale

    $3,349,900

    11 NE 55TH AVE, Portland

    11 NE 55TH AVE, Portland, OR 97213

    • 7 Beds
    • 8 Baths
    • 9,647 Sq.Ft.
  • 9903 YERGEN RD Sold

    $3,100,000

    9903 YERGEN RD

    9903 YERGEN RD, Aurora, OR 97002

  • 13740 NW BURTON ST Sold

    $3,035,000

    13740 NW BURTON ST

    13740 NW BURTON ST, Portland, OR 97229

    • 5 Beds
    • 5 Baths
    • 7,881 Sq.Ft.
  • 24683 SW NEWLAND RD Sold

    $3,000,000

    24683 SW NEWLAND RD

    24683 SW NEWLAND RD, Wilsonville, OR 97070

    • 5 Beds
    • 7 Baths
    • 7,256 Sq.Ft.
  • 7190 NE Glisan ST, Portland For Sale

    $2,954,900

    7190 NE Glisan ST, Portland

    7190 NE Glisan ST, Portland, OR 97213

    • 14 Beds
    • 12 Baths
    • 8,760 Sq.Ft.
  • 3 Monarch, Wilsonville For Sale

    $2,950,000

    3 Monarch, Wilsonville

    4584 SW Monarch LN, Wilsonville, OR 97070

    • 5 Beds
    • 2 Baths
    • 4,735 Sq.Ft.
  • 5100 SE ALDONA CT Sold

    $2,820,000

    5100 SE ALDONA CT

    5100 SE ALDONA CT, Milwaukie, OR 97267

  • 6717 SE Gladstone ST, Portland For Sale

    $2,799,900

    6717 SE Gladstone ST, Portland

    6717 SE Gladstone ST, Portland, OR 97206

    • 8 Beds
    • 9 Baths
    • 6,488 Sq.Ft.
  • 22300 SW AEBISCHER RD Sold

    $2,750,000

    22300 SW AEBISCHER RD

    22300 SW AEBISCHER RD, Sherwood, OR 97140

    • 4 Beds
    • 4 Baths
    • 3,832 Sq.Ft.
  • 15750 S GERBER RD Sold

    $2,670,000

    15750 S GERBER RD

    15750 S GERBER RD, Oregon City, OR 97045

    • 4 Beds
    • 5 Baths
    • 4,332 Sq.Ft.
  • 3562 N Haight AVE For Sale

    $2,619,900

    3562 N Haight AVE

    3562 N Haight AVE, Portland, OR 97227

    • 9 Beds
    • 12 Baths
    • 6,733 Sq.Ft.
  • 1410 SE TOWNSHIP RD Sold

    $2,617,500

    1410 SE TOWNSHIP RD

    1410 SE TOWNSHIP RD, Canby, OR 97013

    • 10,100 Sq.Ft.
  • 17210 WALL ST Sold

    $2,600,000

    17210 WALL ST

    17210 WALL ST, Lake Oswego, OR 97034

    • 6 Beds
    • 6 Baths
    • 10,883 Sq.Ft.
  • 3001 NE Ainsworth ST, Portland For Sale

    $2,579,900

    3001 NE Ainsworth ST, Portland

    3001 NE Ainsworth ST, Portland, OR 97211

    • 4 Beds
    • 6 Baths
    • 6,408 Sq.Ft.
  • 9424 N Oswego AVE Sold

    $2,530,000

    9424 N Oswego AVE

    9424 N Oswego AVE, Portland, OR 97203

    • 18 Beds
    • 18 Baths
    • 6,590 Sq.Ft.
  • 1777 SKYLAND DR, Lake Oswego For Sale

    $2,495,000

    1777 SKYLAND DR, Lake Oswego

    1777 SKYLAND DR, Lake Oswego, OR 97034

    • 4 Beds
    • 4 Baths
    • 4,872 Sq.Ft.
  • 20 SW 111TH TER For Sale

    $2,400,000

    20 SW 111TH TER

    20 SW 111TH TER, Portland, OR 97229

    • 4 Beds
    • 4 Baths
    • 4,442 Sq.Ft.
  • 1873 SE Tacoma ST, Portland For Sale

    $2,369,900

    1873 SE Tacoma ST, Portland

    1873 SE Tacoma ST, Portland, OR 97202

    • 8 Beds
    • 12 Baths
    • 5,476 Sq.Ft.
  • 1426 VILLAGE PARK PL Sold

    $2,350,655

    1426 VILLAGE PARK PL

    1426 VILLAGE PARK PL, West Linn, OR 97068

    • 24 Beds
    • 8 Baths
    • 9,084 Sq.Ft.
  • 8101 NE Glisan ST Sold

    $2,350,000

    8101 NE Glisan ST

    8101 NE Glisan ST, Portland, OR 97213

  • 8101 NE GLISAN ST Sold

    $2,350,000

    8101 NE GLISAN ST

    8101 NE GLISAN ST, Portland, OR 97213

    • 11,260 Sq.Ft.
  • 16083 Kaylyn DR For Sale

    $2,349,900

    16083 Kaylyn DR

    16083 Kaylyn DR, Oregon City, OR 97045

    • 5 Beds
    • 6 Baths
    • 4,216 Sq.Ft.
  • 5010 PARK BLUFF PL, Lake Oswego For Sale

    $2,295,000

    5010 PARK BLUFF PL, Lake Oswego

    5010 PARK BLUFF PL, Lake Oswego, OR 97035

    • 4 Beds
    • 4 Baths
    • 4,287 Sq.Ft.
  • 305 SE Jetty AVE, Lincoln City For Sale

    $2,279,900

    305 SE Jetty AVE, Lincoln City

    305 SE Jetty AVE, Lincoln City, OR 97367

    • 8 Beds
    • 12 Baths
    • 6,713 Sq.Ft.
  • 629 SE SAINT ANDREWS DR, Portland For Sale

    $2,250,000

    629 SE SAINT ANDREWS DR, Portland

    629 SE SAINT ANDREWS DR, Portland, OR 97202

    • 4 Beds
    • 4 Baths
    • 4,137 Sq.Ft.
  • 4974 PARK BLUFF PL, Lake Oswego For Sale

    $2,200,000

    4974 PARK BLUFF PL, Lake Oswego

    4974 PARK BLUFF PL, Lake Oswego, OR 97035

    • 4 Beds
    • 4 Baths
    • 4,119 Sq.Ft.
  • 4992 PARK BLUFF PL, Lake Oswego For Sale

    $2,200,000

    4992 PARK BLUFF PL, Lake Oswego

    4992 PARK BLUFF PL, Lake Oswego, OR 97035

    • 4 Beds
    • 5 Baths
    • 4,023 Sq.Ft.
  • 1318 NE 46th AVE, Portland For Sale

    $2,150,000

    1318 NE 46th AVE, Portland

    1318 NE 46th AVE, Portland, OR 97213

    • 12 Beds
    • 12 Baths
    • 6,121 Sq.Ft.
View All Properties

Follow Us On Instagram